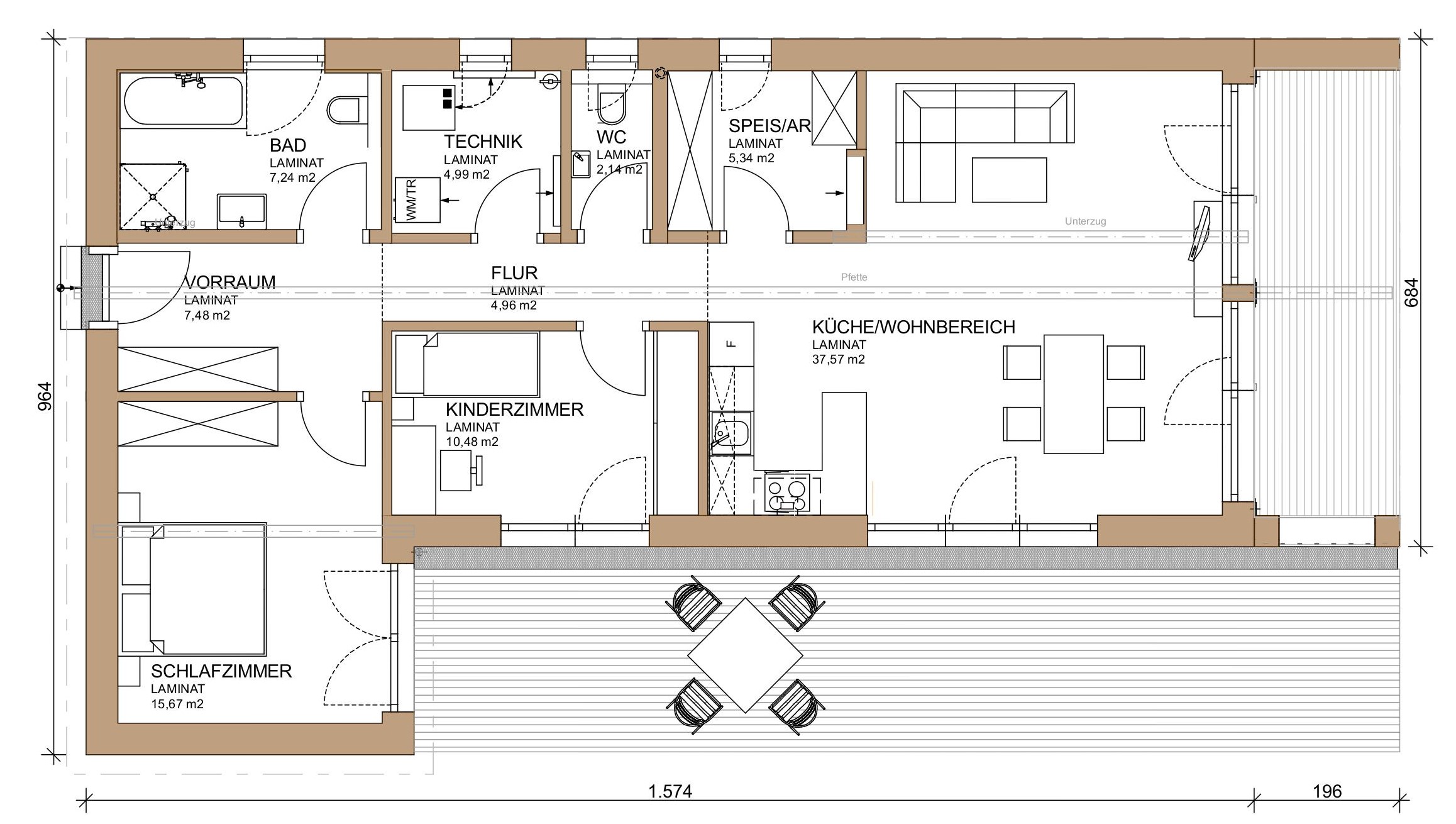
Flexible Cova 95 m²
Grundpreis
Stand: 01.05.2025
Schlüsselfertig, Heizungsgerät gegen Aufpreis. Preis gültig im Umkreis von 70 km ab Werk. Eine Lieferung ist in ganz Österreich möglich, für die Anlieferung über 70 km Entfernung wird eine Liefer-, Kran-, und Nächtigungspauschale verrechnet! Änderungen vorbehalten. Preis inkl. MWSt. ab Bodenplatteoberkante.
Zusatzmodule
Zubauten
Wintergarten
Mit einem Wintergarten Zubau wird ein lichtdurchfluteter Wohnraum zwischen drinnen und draußen geschaffen: Perfekt für alle Naturverbundenen.
Carport
Ein Carport Zubau kann individuell an Ihr Flexible Designerhaus angepasst werden – ganz gleich, ob es sich dabei um ein Einzelcarport oder ein Doppelcarport handelt.
Zusatzraum
Ihr Flexible Designerhaus können Sie ganz unkompliziert um einen oder mehrere Zusatzräume modular erweitern.
Dacharten
Satteldach
Die individuell wählbare Dachneigung verleiht Ihrem Flexible Designerhaus eine besondere Note.
Pultdach
Ein Flexible Designerhaus mit Pultdach bringt viele Vorteile. Das Pultdach schafft optimale Platzverhältnisse .
Walmdach
Das Walmdach wird nicht nur wegen seiner Form und des optisch ansprechenden Designs gerne für Flexible Designerhäuser gewählt.
